2/8 Heysen Circuit, ANDREWS FARM
Villa
Welcome to your Dream Home in Andrews Farm where modern luxury meets lifestyle convenience.
Stylishly designed with entertaining in mind, this contemporary 2024-built villa is a gem!
Whether you are a first-home buyer looking to enter the market, a downsizer seeking simplicity without compromise, or an investor in search of a quality, low-maintenance asset—this home delivers on every level.
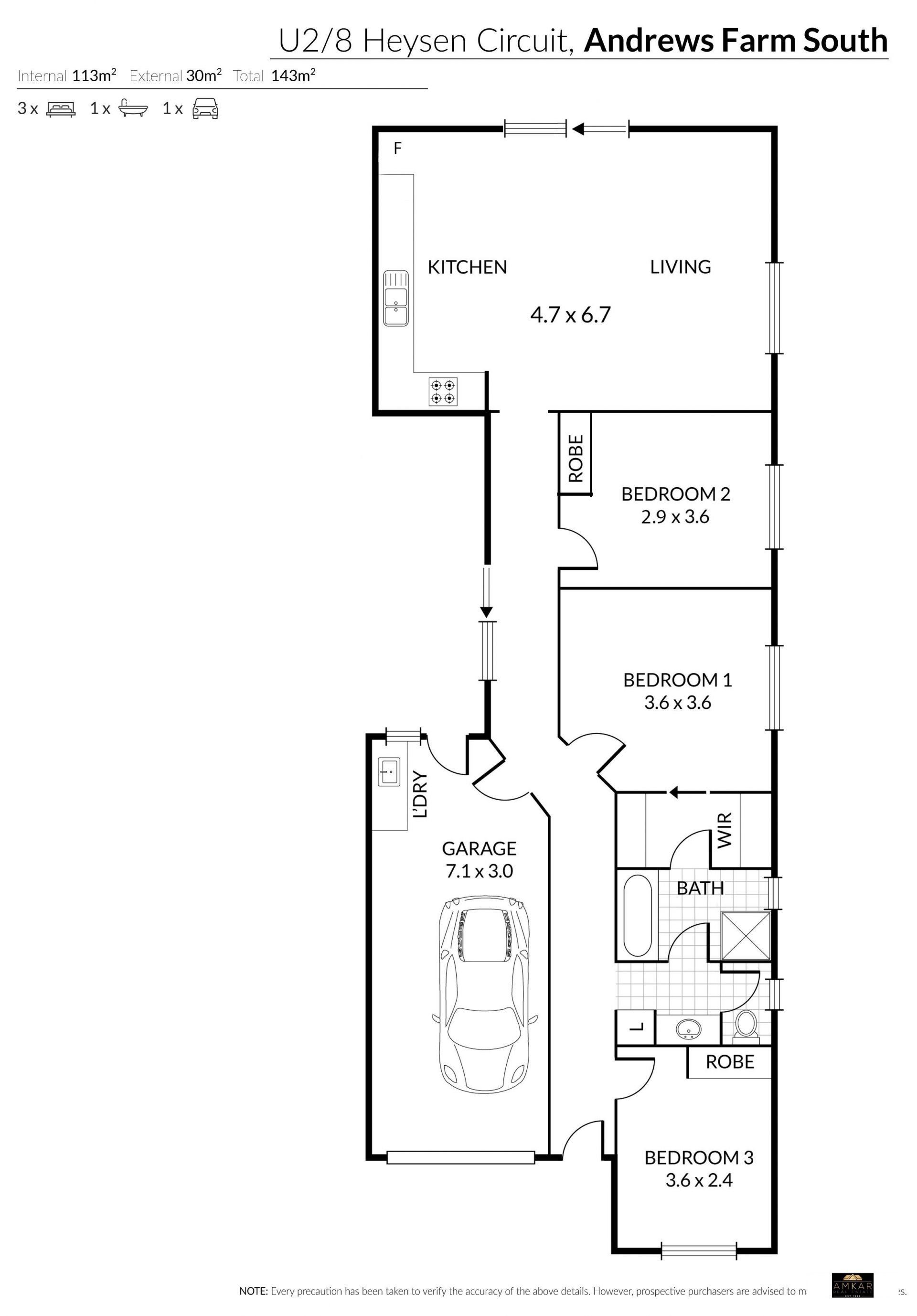
This stunning property boasts three bedrooms.
- Master bedroom with walk-in robe.
- Two other bedrooms each with built in robes.
- Two-way bathroom with a bath and a separate shower.
- Light-filled open plan living and dining area overlooking the rear garden creating
an inviting space for outdoor entertaining.
- Modern kitchen with stainless steel appliances , gas cooktop and a dishwasher,
overlooks the living and dining area.
- Separate Laundry and toilet.
Other features include:
- Laminated flooring.
- Easy care Landscaped garden.
- Enjoy year-round comfort with ducted reverse cycle air conditioning.
- Remote control lock up garage under the main roof offering convenience and peace of mind
with internal access.
- Additional off Street parking in the driveway.
Perfect location with a choice of private and public schools,
close to local shopping centres, public transport and local parks.
This is the perfect place to call home, a modern haven ready to simply move in and enjoy.
PLEASE NOTE: This property is marketed with no price in line with current real estate legislation.
A printout of recent local sales will be available.
Specifications:
Volume 6294 Folio 618
Built: 2024
Land Size: 221m²
Council: City of Playford
Council Rates $1823.10 2024/2025 FY
Water Rates: $165.55 per quarter plus water usage.
Emergency Services Levy: $105.70 2024/2025 FY
Community Plan/Fees: 43164/TBA
Disclaimer: All information provided has been obtained from sources we believe to be accurate, however, we cannot guarantee the information is accurate and we accept no liability for any errors or omissions (including but not limited to a property's land size, floor plans and size, building age and condition) Interested parties should make their own enquiries and obtain their own legal advice.
For further information and for your appointment to view the property
Please contact Amal
RLA 165 785
Whether you are a first-home buyer looking to enter the market, a downsizer seeking simplicity without compromise, or an investor in search of a quality, low-maintenance asset—this home delivers on every level.
This stunning property boasts three bedrooms.
- Master bedroom with walk-in robe.
- Two other bedrooms each with built in robes.
- Two-way bathroom with a bath and a separate shower.
- Light-filled open plan living and dining area overlooking the rear garden creating
an inviting space for outdoor entertaining.
- Modern kitchen with stainless steel appliances , gas cooktop and a dishwasher,
overlooks the living and dining area.
- Separate Laundry and toilet.
Other features include:
- Laminated flooring.
- Easy care Landscaped garden.
- Enjoy year-round comfort with ducted reverse cycle air conditioning.
- Remote control lock up garage under the main roof offering convenience and peace of mind
with internal access.
- Additional off Street parking in the driveway.
Perfect location with a choice of private and public schools,
close to local shopping centres, public transport and local parks.
This is the perfect place to call home, a modern haven ready to simply move in and enjoy.
PLEASE NOTE: This property is marketed with no price in line with current real estate legislation.
A printout of recent local sales will be available.
Specifications:
Volume 6294 Folio 618
Built: 2024
Land Size: 221m²
Council: City of Playford
Council Rates $1823.10 2024/2025 FY
Water Rates: $165.55 per quarter plus water usage.
Emergency Services Levy: $105.70 2024/2025 FY
Community Plan/Fees: 43164/TBA
Disclaimer: All information provided has been obtained from sources we believe to be accurate, however, we cannot guarantee the information is accurate and we accept no liability for any errors or omissions (including but not limited to a property's land size, floor plans and size, building age and condition) Interested parties should make their own enquiries and obtain their own legal advice.
For further information and for your appointment to view the property
Please contact Amal
RLA 165 785
